热门搜索: 阿童木 机器人 D3P D3PM D4 D5 S6
首页> 产品中心 > 并联机器人
蓝月亮料免资料大全

D3PMB-1400-P25

高速度 高精度 高稳定性 重负载
产品介绍

经典高速并联机器人构型,具有沿三维空间XYZ轴平动和绕Z轴旋转的功能特点,通过搭配高精度机器视觉系统,适于PCB板叠板、3C行业电子装配和新能源电池搬运等高动态精度场景。

产品特点

1、标准循环时间0.3s,满足追求最高速度和最经济需求

2、采用旋转伺服电机下置设计,缩短动力传递路径,有效减少旋转轴精度损失

3、非常适于PCB板叠板、3C行业电子装配和新能源电池搬运等高动态精度场景。

立即咨询
经典高速并联机器人

产品详细参数

产品图纸

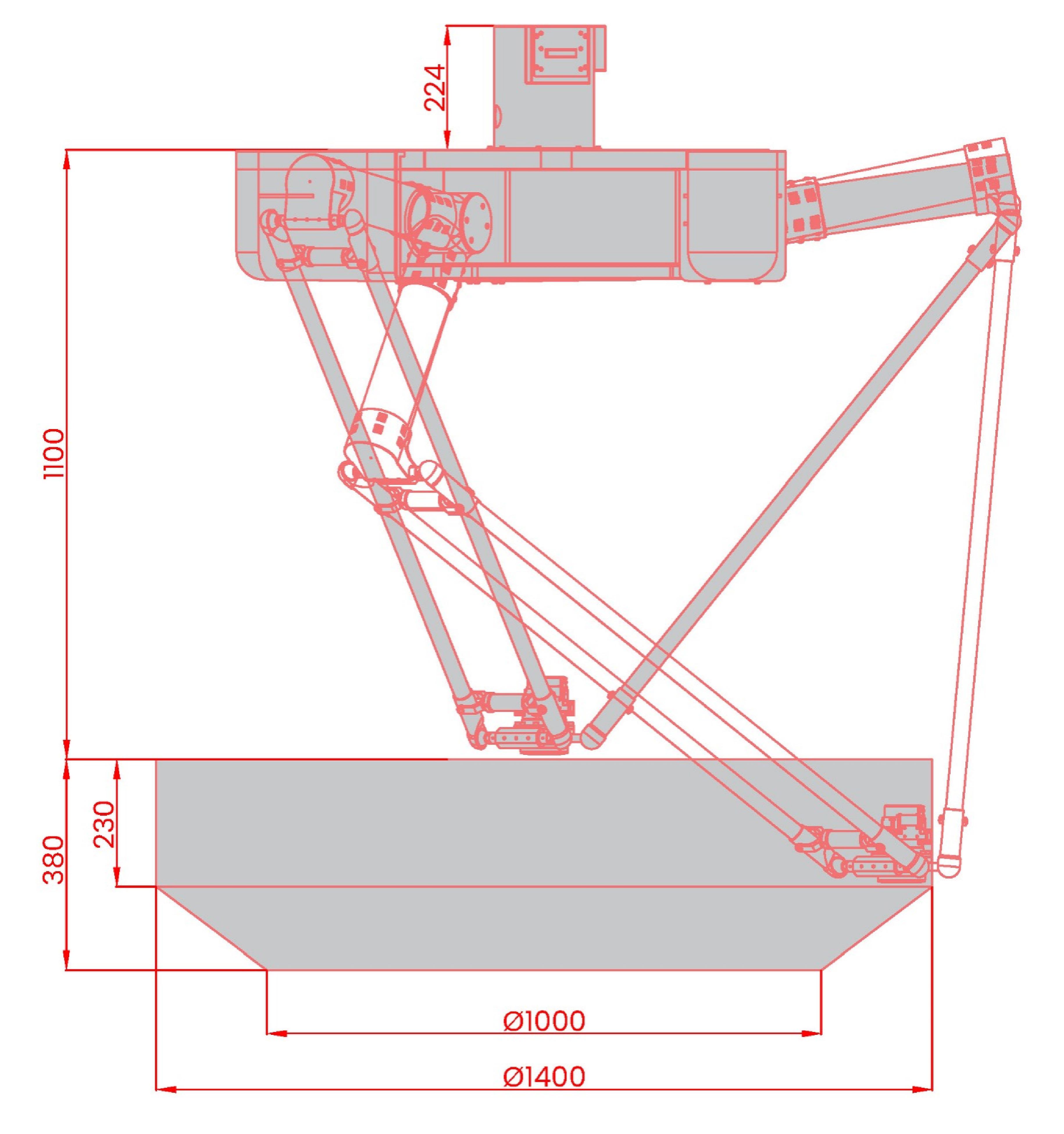
  • 01.外形尺寸及运动范围(mm)

    蓝月亮料免资料大全
  • 02.法兰(mm)

    蓝月亮料免资料大全
  • 03.基座安装(mm)

    蓝月亮料免资料大全

详情了解D3PMB-1400-P25

D3PMB-1400-P25 发客户