热门搜索: 阿童木 机器人 D3P D3PM D4 D5 S6
首页> 产品中心 > 并联机器人
蓝月亮料免资料大全

D2-1300-P15

高速度 高精度 高稳定性 低成本
产品介绍

针对轻型物料的平面搬运和装配作业需求量身打造的2自由度高速并联机器人,无需配备视觉,依靠传感器定位完成平面作业。

产品特点

1、标准循环时间小于0.66s,满足追求最高速度和大负载需求

2、特殊的平面并联机构设计,低成本实现平面高速运动

3、非常适于食品、医药等行业的高速生产作业,主要用于小型物料的装配、搬运、分拣等

立即咨询
简单场景的性价比之选

产品详细参数

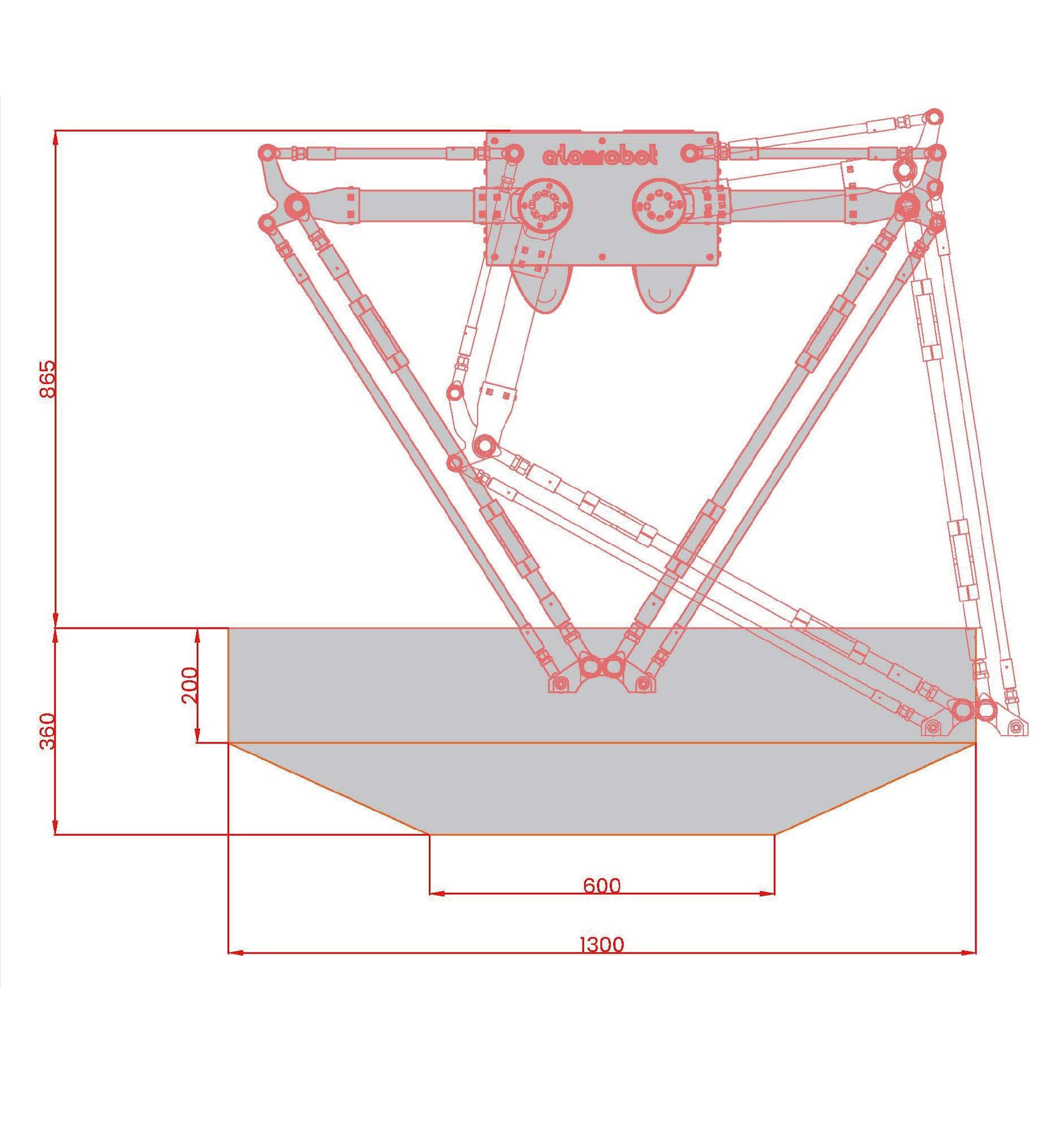
产品图纸

  • 01.外形尺寸及运动范围(mm)

    蓝月亮料免资料大全
  • 02.法兰(mm)

    蓝月亮料免资料大全
  • 03.基座安装(mm)

    蓝月亮料免资料大全